2022温州瓯海第三批人才住房配售房源情况(户型图+楼盘信息)

一、房源分布
瓯海区第三批人才住房配售房源包括4个楼盘项目,总套数为255套。具体房源信息见下表(点击楼盘名称可详见项目楼书,包括楼盘总平面图、楼层平面图、户型图)
二、楼盘总平图,楼层平面图,户型图
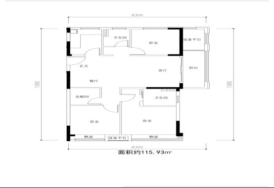
潮启四季苑一组团
项目名称:温州市核心片区会昌河单元B-07地块
开发企业名称:温州市弘麟房地产开发有限公司
地理位置:瓯海区翠微大道与金蟾大道交叉口
配售人才住房所在楼幢:潮启四季苑一组团2#楼
套数:83套 面积:9411.87㎡
户型建筑面积:为115㎡和110㎡两种
交付时间:计划于2022年12月15日交付。
备注:开发企业提供的以下平面示意图建筑空间格局、功能创意展示仅供购房参考,不属于交付内容和交付标准。相同户型因楼栋、楼层、单元等差别,局部结构、面积等可能不同,具体以开发企业提供的政府最后批准法律文件及双方签订的商品房买卖合同为准。购房合同(补充协议)、流程、物业费、车位、不利因素等详细内容,请务必在申报前咨询开发企业或前往售楼处详细了解。
潮启四季苑一组
潮启四季苑二组团
项目名称:温州市核心片区会昌河单元B-03地块
开发企业名称:温州市弘麟房地产开发有限公司
地理位置:瓯海区翠微大道与金蟾大道交叉口
配售人才住房所在楼幢:潮启四季苑二组团2#楼
套数:79套 面积:8920.48㎡
户型建筑面积:为115㎡和110㎡两种
交付时间:计划于2022年6月15日交付。
备注:开发企业提供的以下平面示意图建筑空间格局、功能创意展示仅供购房参考,不属于交付内容和交付标准。相同户型因楼栋、楼层、单元等差别,局部结构、面积等可能不同,具体以开发企业提供的政府最后批准法律文件及双方签订的商品房买卖合同为准。购房合同(补充协议)、流程、物业费、车位、不利因素等详细内容,请务必在申报前咨询开发企业或前往售楼处详细了解。
潮启四季苑
二组团 户型图
堂悦苑
项目名称:保祥·堂悦苑(期房)
开发企业名称:温州保祥置业有限公司
地理位置:瓯海区景山街道兴海路与振瓯路交汇处西南角
配售人才住房所在楼幢:4幢(6-18偶数层,01-04户型 17层04,具体分布详见附表)
套数:24套 面积:2549.45㎡
户型建筑面积:约90㎡
交付时间:计划于2024年4月30日交付
售楼处地址:瓯海区景山街道兴海路与振瓯路交汇处西南角 电话:0577-88666888
备注:开发企业提供的以下平面示意图建筑空间格局、功能创意展示仅供购房参考,不属于交付内容和交付标准。相同户型因楼栋、楼层、单元等差别,局部结构、面积等可能不同,具体以开发企业提供的政府最后批准法律文件及双方签订的商品房买卖合同为准。购房合同(补充协议)、流程、物业费、车位、不利因素等详细内容,请务必在申报前咨询开发企业或前往售楼处详细了解。
楼层平面图
瀚墨轩五号楼
项目名称:建发·瀚墨轩(期房)
开发商名称:温州兆瓯房地产有限公司
地理位置:瓯海区振兴路与沉木桥街交叉口,外国语学校小学分校对面
配售人才住房所在楼幢:5幢(6层以上及偶数层)套数:44套 面积:3939.87㎡
户型建筑面积:约90㎡
交付时间:计划于2024年9月30日交付
售楼处地址: 瀚墨轩营销中心(温州市瓯海区振兴路与沉木桥街交叉口) 电话:0577-89888665
备注:开发企业提供的以下平面示意图建筑空间格局、功能创意展示仅供购房参考,不属于交付内容和交付标准。相同户型因楼栋、楼层、单元等差别,局部结构、面积等可能不同,具体以开发企业提供的政府最后批准法律文件及双方签订的商品房买卖合同为准。购房合同(补充协议)、流程、物业费、车位、不利因素等详细内容,请务必在申报前咨询开发企业或前往售楼处详细了解。
瀚墨轩十七号楼
项目名称:建发·瀚墨轩(期房)
开发商名称:温州兆瓯房地产有限公司
地理位置:瓯海区振兴路与沉木桥街交叉口,外国语学校小学分校对面
配售人才住房所在楼幢:17幢(18-26层偶数层)
套数:20套 面积:2214.05㎡
户型建筑面积:约90、120、140㎡
交付时间:计划于2024年9月30日交付
售楼处地址: 瀚墨轩营销中心(温州市瓯海区振兴路与沉木桥街交叉口) 电话:0577-89888665
备注:开发企业提供的以下平面示意图建筑空间格局、功能创意展示仅供购房参考,不属于交付内容和交付标准。相同户型因楼栋、楼层、单元等差别,局部结构、面积等可能不同,具体以开发企业提供的政府最后批准法律文件及双方签订的商品房买卖合同为准。购房合同(补充协议)、流程、物业费、车位、不利因素等详细内容,请务必在申报前咨询开发企业或前往售楼处详细了解。
