无锡龙塘岸后五巷B块保障房户型(无锡后五巷B地块项目)

龙塘岸后五巷B块项目
总建筑面积约19万平方米,规划建设住房1727套。
户型
80平方米左右的两居室为主、少量配置90平方米左右的三居室,以满足住房保障家庭的不同需要。
户型设计上做到了卧室朝南、起居室及厨卫等区域充分满足通风采光要求。
预计在2023年6月交付使用。
龙塘岸后五巷B块拟建8栋24-26层住宅,户型图(点击看大图)
1#-7#楼户型如下
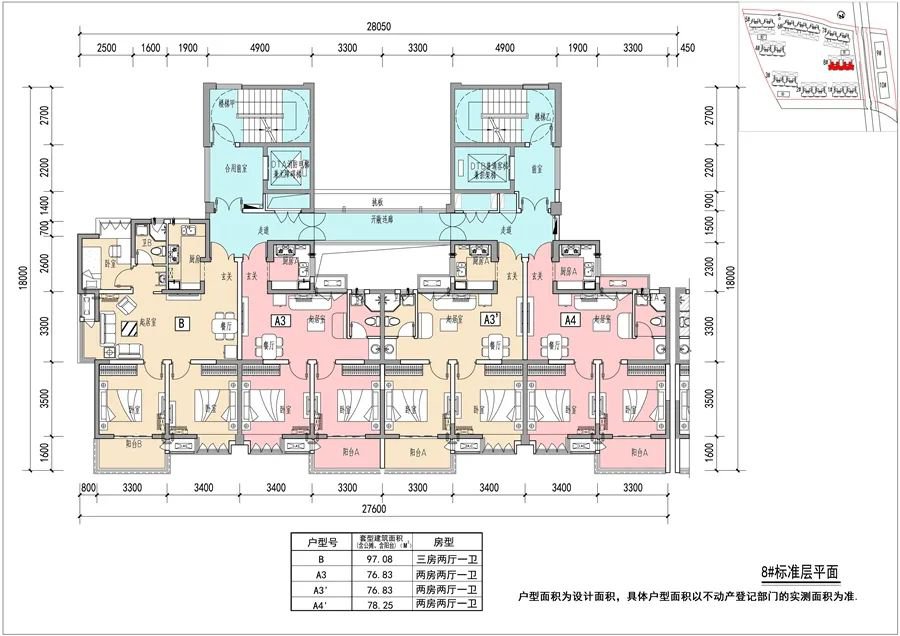
8#楼户型如下

龙塘岸后五巷B块项目
总建筑面积约19万平方米,规划建设住房1727套。
户型
80平方米左右的两居室为主、少量配置90平方米左右的三居室,以满足住房保障家庭的不同需要。
户型设计上做到了卧室朝南、起居室及厨卫等区域充分满足通风采光要求。
预计在2023年6月交付使用。
龙塘岸后五巷B块拟建8栋24-26层住宅,户型图(点击看大图)
1#-7#楼户型如下
8#楼户型如下